
Pagkrati区是雅典律师、艺术工作者聚集的一个区,充满文艺气息。公寓周边配套娴熟,交通便利,除了公交车和有轨电车外,步行几分钟就有地铁。周围公园绿地环绕,道路规划井然,自然环境好。距城市主干道较近,可直达雅典各区。在市中心的若干个区域里,这边生活气息更浓,推荐购买后做长租,好招租且收益稳定,也是Airbnb的理想选择。
这个街区离宪法广场(Syntagma Square)只有15分钟的步行路程,不论是步行还是驱车到Pangrati区域都是非常方便的。在这里,你可以看到古代命运女神Tyche的神庙碎片,也可以看到雅典卫城、现代城市和远海的迷人景色。
Pangrati没有统一的风格——并不是所有的新古典主义建筑都是明信片样式的,比如普拉卡(Plaka)。它的建筑风格更加多样化,既有富丽堂皇的老别墅,也有20世纪中期的公寓楼,甚至还有一些新的、前沿的尖端建筑。
Pangrati有一个角落叫Proskopon广场,这里让人感觉更像巴黎而不是雅典。这里的气氛比地中海更具大陆性;广场上到处都是沿街的咖啡馆,高大的树木和高耸的公寓楼为广场遮阴
Pangrati是雅典一个年轻而活跃的社区,这个区域放佛是不眠不休的,咖啡厅和酒吧整日整夜都挤满了人。
此次我们推荐的希腊优质房产项目——兰亭十期,就坐落于Pangrati区域,拥有着良好的地理优势,项目位于雅典市中心核心区域卫城景区,周边景点环绕,同时也是大学城交汇区域。是雅典的教育重地和发展重点区域。这也是我们推荐此项目的主要原因。
希腊兰亭十期
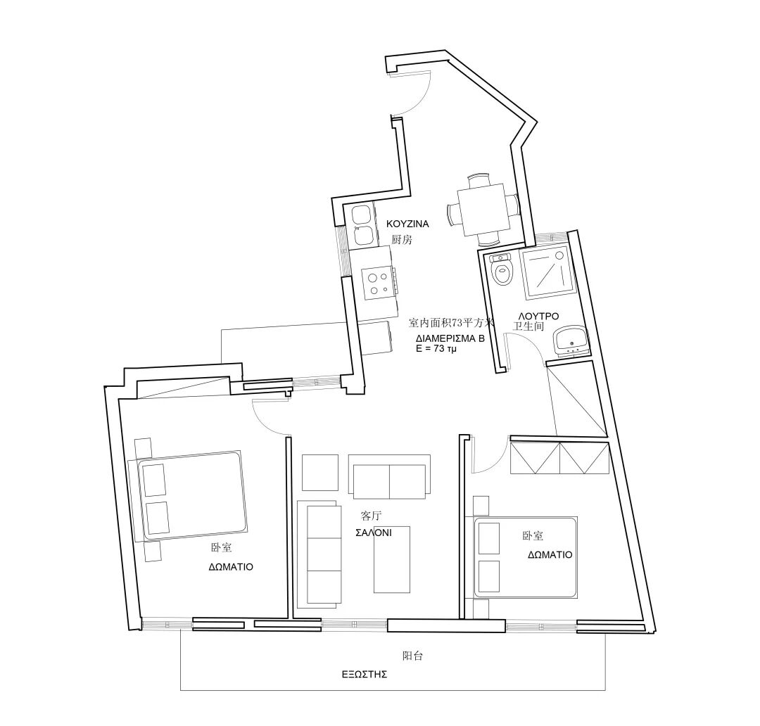
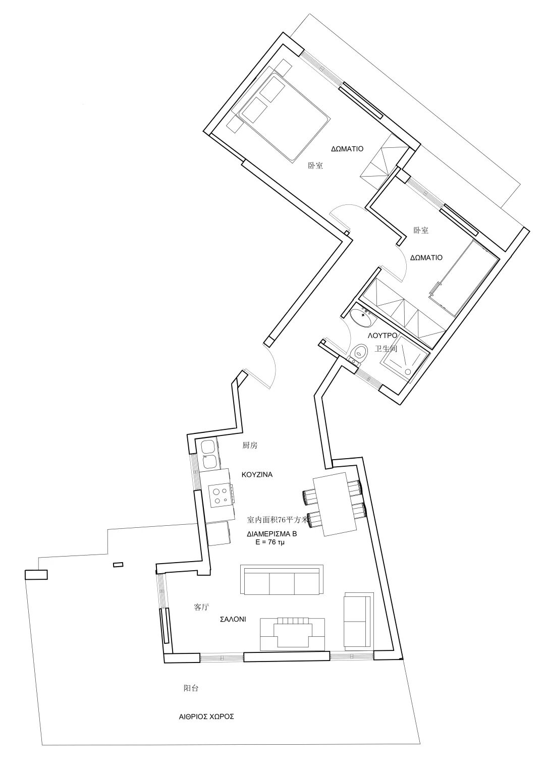
项目基本信息:项目是一栋四层的花园洋房,有六套高端精品公寓,户型有一居室,两居室可供选择,户型方正,南北通透空间,欧式风格,豪华装修,惬意悠享假日生活。距离已经交房运营的兰亭五期仅50米距离,居住人群层次高,周边公园、超市、学校、餐厅、购物中心、医院、药店银行、体 育馆等基础生活设施配套完善,生活气息十足。项目为现房,可15个工作日快速过户。
项目室内效果图
户型图
项目周边
项目交通
项目位于雅典市中心景区商务区,也是Airbnb最为繁华的区域。区域东侧为巴尔干半岛第一所大学雅典大学以及希腊最大的移民局雅典移民局所在地,南侧为Airbnb密集区,西侧为五千年历史文化悠久的卫城古文化遗址景区,北侧则为希腊议会以及资本主义国家使馆区。同时也是雅典名流政要的故乡,是希腊外交部长,前希腊总统,船王以及奥斯卡音乐作曲得主的故乡。
项目距离地铁站750米,交通线路直达雅典国际机场和宪法广场。公交227只需5站直达卫城景区,同时也是4号线开发的重要途径站,交通便捷,生活便利。
项目周边出租情况
Pagrati和Stadiou作为雅典市中心政治文化交汇枢纽,位于雅典市中心政治要塞总统府后面,背靠奢华的王宫花园和希腊议会,坐拥奥林匹克发源地奥林匹亚体育馆,是雅典市中心的高端商业区广场最多的区域,靠近希尔顿、皇冠等连锁酒店和使馆。经济繁荣,交通发达,人流访问量大,居住人群层次高。项目显要的地理位置使得周边安全防护较为严格。
希腊移民要求:
希腊投资移民优势:
永久产权:25万欧元购房,永久产权房产,可获得稳定租金收益;
全家身份:一步到位,一家三代欧盟申根永居身份;
快速办理:无需提供资金来源证明,8~12个月即可办理完成,100%成功;
优质教育:可免费入读公立学校,私立学校学费低廉;
宜人环境:地中海气候,环境舒适宜人;
欧盟护照:投资人在希腊合法居住7年之后可申请入籍,子女入读6年即可入籍。持欧盟护照享欧盟国家教育、医疗、工作等权利,按照欧盟生的标准入学,门槛更低,选择更广,学费更便宜;
自由出行:希腊永居身份畅行欧洲26个申根国家,自由选择居住环境。
希腊项目考察预约热线:400-008-0512
申请人要求:
1. 年满18岁,无年龄上限要求,无学历及语言要求;
2. 在希腊购买25万欧元以上的房产;
3. 有至少一次入境希腊的记录;
4. 无学历、语言、背景、资金等方面的要求;
5. 无健康证明要求;
6. 随行人员:全家三代:主申请人、其配偶、其子女(21周岁以下非独立子女)、主申请人父母、配偶子女。

苏公网安备 32059002002239号
